国际品牌酒店 国内品牌酒店 SPA顶级水疗 顶尖餐厅饭馆 顶尖娱乐场所
当前位置:中国酒店设计网酒店品牌国际品牌酒店【索菲特】 》 合肥索菲特明珠国际大酒店

北京万达索菲特大饭店

北京万达索菲特大饭店图片展示:

灯饰细部特写壁灯
灯饰细部特写壁灯
会议厅造型吊灯
会议厅造型吊灯
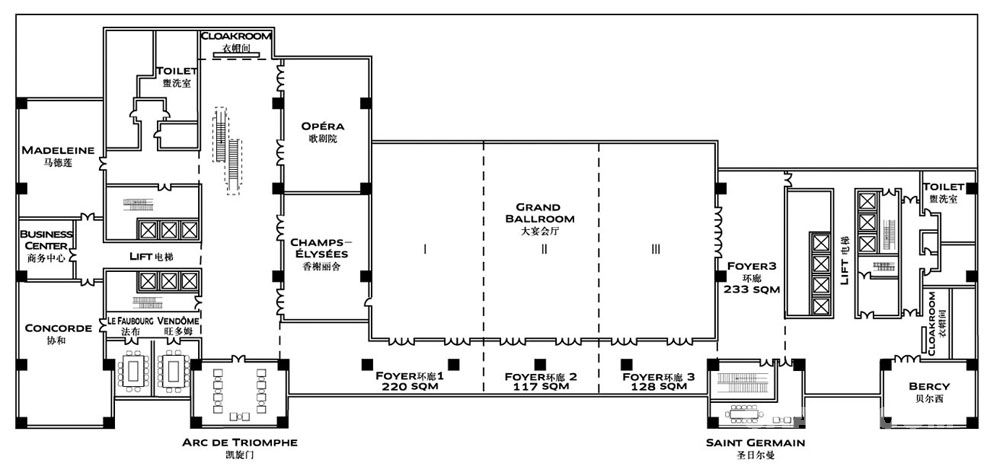
酒店平面图
酒店平面图
套房(一角)墙面装饰隔断地毯椅子台灯
套房(一角)墙面装饰隔断地毯椅子台灯
套房客厅吊灯欧式椅子地毯茶几造型椅子壁炉
套房客厅吊灯欧式椅子地毯茶几造型椅子壁炉

北京万达索菲特大饭店是由法国雅高集团在北京管理的一家涉外高档饭店。酒店开业时间2007年8月19日,楼高27层,共有客房总数417间(套),标间面积38平米。

饭店位于北京东三、四环间CBD中央商务区中心地带,距机场高速咫尺之遥,交通十分便利。 饭店楼高23层,房间豪华舒适。酒店同时拥有面积不等的10间多功能厅,其中大宴会厅面积达1,368平方米。饭店共设4间餐厅:全天候西餐厅及法国LeNotre美点厅,日餐厅,米奇林标准法国餐厅及中餐厅;并设有法国葡萄酒及雪茄吧,大堂酒廊,行政酒廊,健身中心及蓝蔻SPA等;为商务下榻,会议洽谈及休闲度假的理想之选。

这家白金五星级酒店提供独特的现代豪华体验,巧妙地融合了中华文化的精髓与法国式的优雅。北京万达索菲特酒店拥有 417 间客房和套房、各式餐厅和酒吧,包括荣获法国美食大奖的 Le Pré Lenôtre 餐厅;会议设施可容纳 1000 人,还有完全的健身服务。北京万达索菲特大饭店是索菲特在亚太地区新的旗舰酒店。 引人注目的设计汲取了中法文化的渗透,在整个主题和装饰中都强调了法国和中国之间强烈的文化联系。

地址:北京市朝阳区建国路93号万达广场C座

星级:5星级

交通:酒店距市中心7公里,20分钟车程;距北京站6公里,15分钟车程;距机场30公里,30分钟车程;距国际贸易中心1.5公里。

餐饮:酒店拥有法国著名Lenotre品牌的Le Pre Lenotre法餐厅. 此外还有5个与众不同的餐厅和酒吧: VIC国际美食, Vous大堂吧, 老上海中餐厅, 烧肉笼屋八兵料理和法国风情的M吧.

北京万达索菲特大饭店网友评论:

推荐设计|装饰|材料公司

推荐设计师

热点资讯
推荐装修材料
推荐资讯
推荐酒店效果图



相关图集推荐

关于我们  帮助中心   广告服务  渠道合作  留言反馈  招贤纳士  联系我们

咨询合作电话:40000-96033 商务QQ 编辑QQ 技术QQ 公司电话:0755-83286600 QQ群:203997684

Copyright©www.caaad.com All Rights Reserved 粤ICP备10202724号

集酒店品牌设计酒店设计装修效果图酒店设计标准会所设计说明度假酒店东南亚风格酒店新闻酒店行业新闻酒店管理知识酒店设计规范主题酒店商务酒店快捷连锁酒店于一体,包含了酒店设计公司设计大师人物访谈软装配饰装修选材软件下载设计论坛工程项目问题解答人才招聘等内容。